0
Skip to Content
HOME
SETS
EXT HEADFRAME
INT HEADFRAME
NASA ENCAMPMENT
BOOKER T'S DINER
EXT CONCERT HALL
LUCY'S HOUSE
JULIAN'S HOUSE
MATT'S HOUSE
MINESHAFT BUILD IN STUDIO
CHURCH STEEPLE
MISC. BUILDS
MAGICAL MOMENTS
PICTURE CARS
AFRICAN MARKET
ART DEP CALENDAR
WEEKLY SET PLANS
STORYBOARDS
Open Menu
Close Menu
HOME
SETS
EXT HEADFRAME
INT HEADFRAME
NASA ENCAMPMENT
BOOKER T'S DINER
EXT CONCERT HALL
LUCY'S HOUSE
JULIAN'S HOUSE
MATT'S HOUSE
MINESHAFT BUILD IN STUDIO
CHURCH STEEPLE
MISC. BUILDS
MAGICAL MOMENTS
PICTURE CARS
AFRICAN MARKET
ART DEP CALENDAR
WEEKLY SET PLANS
STORYBOARDS
Open Menu
Close Menu
HOME
Folder:
SETS
Back
EXT HEADFRAME
INT HEADFRAME
NASA ENCAMPMENT
BOOKER T'S DINER
EXT CONCERT HALL
LUCY'S HOUSE
JULIAN'S HOUSE
MATT'S HOUSE
MINESHAFT BUILD IN STUDIO
CHURCH STEEPLE
MISC. BUILDS
MAGICAL MOMENTS
PICTURE CARS
AFRICAN MARKET
ART DEP CALENDAR
WEEKLY SET PLANS
STORYBOARDS
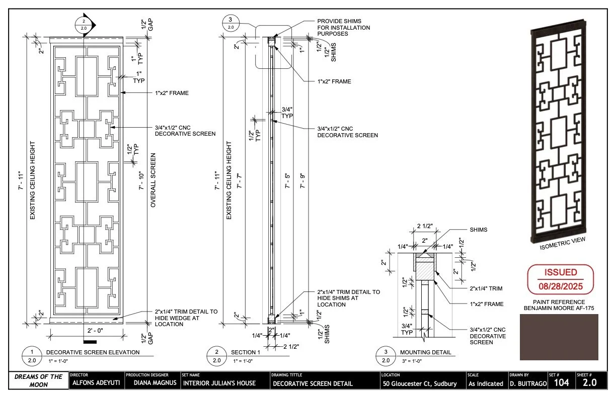
JULIAN’S HOUSE DRAWINGS
Previous
Previous
JULIAN'S HOUSE LOOKBOOK